Deposito in Vendita a Latina
Zona: R1 Zona Tribunale
Classe energetica
G
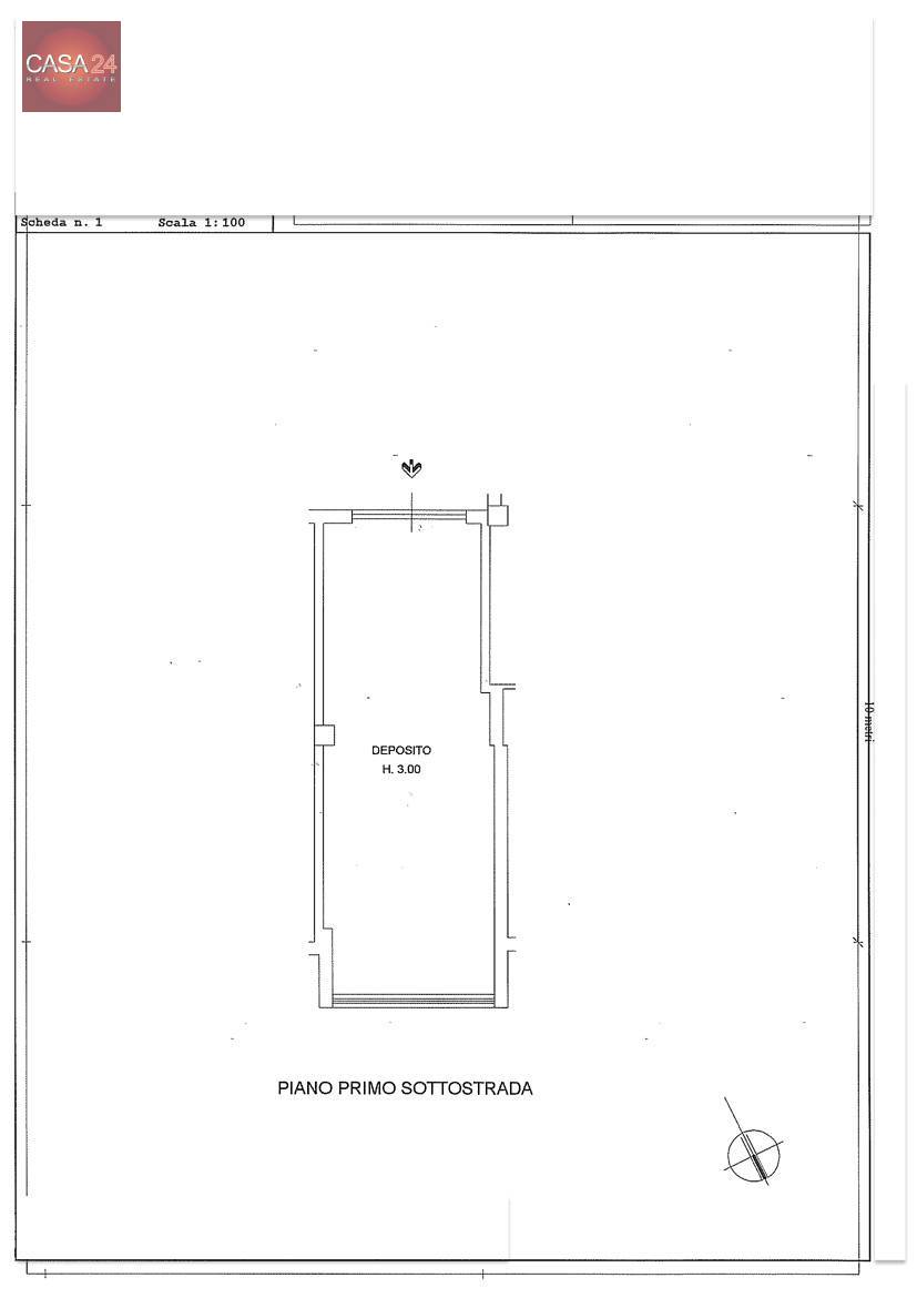
Vendesi Deposito Garage posto al piano seminterrato di c/a 43 mq, con serranda e finestra nella parte posteriore.
Disponibile da subito.
C'è la possibilita di acquistare una cantina/Deposito al piano seminterrato di circa 10mq
Per informazioni e appuntamenti potete contattare il num. 3929779222 - 3382477152
Rif. 2971
Informazioni immobile
Codice: 2971
Contratto: Vendita
Tipologia: Deposito
Regione: Lazio
Provincia: Latina
Comune: Latina
Zona: R1 Zona Tribunale
Prezzo: € 32.000
Totale mq: 43 mq
Locali: 1
Stato conservazione: Buono
Nelle vicinanze
Palestre
Centri Benessere
Campi da Calcio
Complessi Sportivi
Campi da Tennis
Piste Ciclabili
Parchi Giochi
Trasporti Pubblici
Asilo
Scuole Elementari
Scuole Medie
Scuole Superiori
Bar
Uffici postali
Centri commerciali
Uffici comunali
Mappa immobile
Contattaci
Casa24 Real Estate
Via Montesanto 12/14
Latina (LT)
Telefono 3382477152
Cellulare 3929779222
info@casa24re.com
Condividi
Immobili simili
Ultimo aggiornamento 04-12-2023
